Before You Renovate: What Every High-End Homeowner Should Know
Part 1 of this series covered the fundamentals — how to think about your lifestyle, build the right team, and approach your budget. If you haven't read it yet, start there. This post goes deeper: the things that trip people up even when they've done their homework.
A high-end renovation is all about planning and preparation. There’s the obvious kind — the budget, the timeline, the team — but also the thinking through that happens underneath all of that. Understanding what you actually want. What we can and cannot do in your home. What the process might look like while the walls are open.
Expect surprises. Expect to pivot. I am here to help you through it all.
Here's what I wish every client knew before we broke ground.
1. Know What We Can Actually Do
There’s a lot of process before we get to outcome. Before you fall in love with a particular design or look, we have to find out if your house will allow for it. There’s a lot that goes on behind the walls. There’s load-bearing walls, plumbing chases, and electrical pathways to name a few. In older homes who knows what went on behind the scenes. I am yet to find a project without a jerry rigged solution uncovered once the walls come down. A friend who though they were a plumber. A cousin with a hammer. And a long history before there was building code.
In the Boston area especially, historic homes have stories. Original structure from one century, additions from another, systems updated piece meal over decades. Often we do a discovery walk-through with the GC, plumber, and architect early in a project. This way we can uncover issues before they become surprises later on. I call it forensic decorating.
For some historically designated properties, there's often an additional layer: what is allowed by historic commission and approval can be required. Local expertise matters here. I've worked in many towns in the Boston area — the requirements, the timelines, and the personalities at the permitting office vary significantly from one town to the next.
Knowing what's behind the walls before you start saves surprises. And surprises in construction are rarely the good kind.
House reframed to support second story in Wellesley. Support beams in place.
2. Get Clear on What You Actually Want — Especially If There Are Two of You
Renovations can expand quickly when goals aren't defined. And even when they are defined, we often experience scope creep. A kitchen refresh becomes a full first-floor gut renovation. A primary bath update grows into a primary suite addition.
Getting clear on your goals before design begins is one of the most valuable things you can do. And if there are two of you — a couple with different priorities, different aesthetics, or different ideas about budget — it can get complicated quickly.
A big part of what I do is help my clients find a shared language for their home. Not compromise in the sense of neither person getting what they want, but finding the part of the Venn diagram with overlap. And a design direction that feels right to both of them. That conversation starts with some version of the same question I ask every client at the beginning: What is the one thing on this project that matters most?
It sounds simple. The answers are always revealing. And they make every decision that follows make sense.
I ask every client: what is the one thing on this project that matters most? The answers are always revealing.
3. Design for the Life You Actually Live
A home that looks beautiful but doesn't fit your life is a showpiece. For me I want my clients’ homes to be beautiful and to function and to make their lives better every day. I want you to live in your home as a back drop that supports you.
The perfect fabric on the window treatments, a rug that is beautiful, a tile that is just. A chandelier that looks like it was always there. These things make you happy every day you walk by them.
That means thinking about flow and light and connections — how you move through the house on a Tuesday morning, not just how it looks on a Saturday when guests are coming. Where do the backpacks land when the kids come home? Where do you actually eat breakfast? Is the laundry where it should be, or is it where it ended up? How do the coat closets work for you? What about a place to put on your boots? Do you like to see appliances or not?
I recently worked with two professionals with three kids who needed their basement to suit a lot of different needs: home office, laundry, workout space, storage, and a place to watch TV. When a small space has too many needs, it gets challenging. Three I can usually do. Four or five is asking a lot.
In this project, we carved out each zone carefully, created serious storage, and helped the clients edit down what they could live with and what they could live without. We gave a lot of time for this to percolate. Me telling a client to lose all their books doesn't work. So I asked how many books they felt comfortable living with. What was their minimum? Those questions drove some hard thinking on their part. The result is a space that's usable, organized, and beautiful. They tell me they keep it tidy now — because everything has a place. That's what good design in service of the people who live there looks like.
Who needs to move when your space actually works for you?
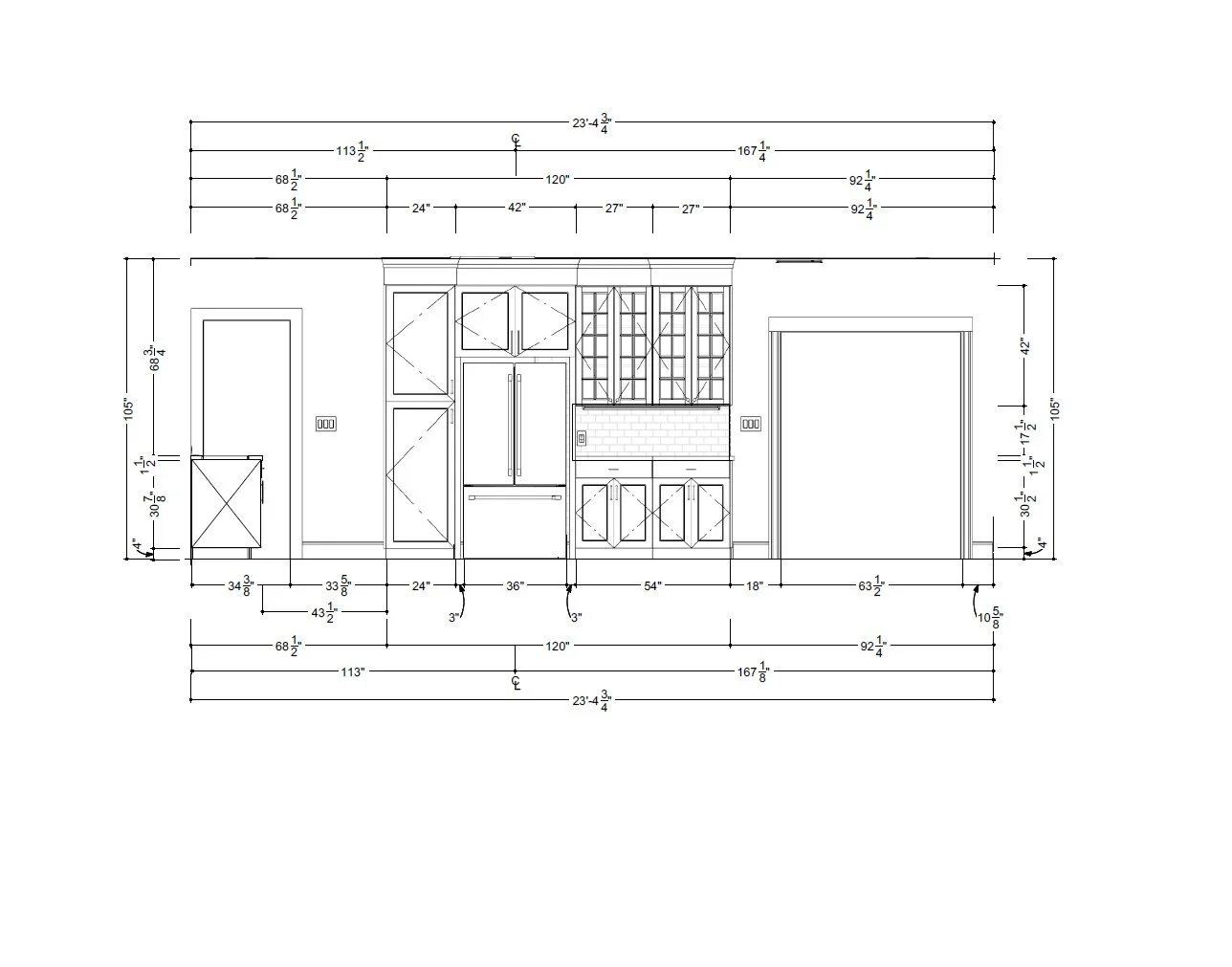
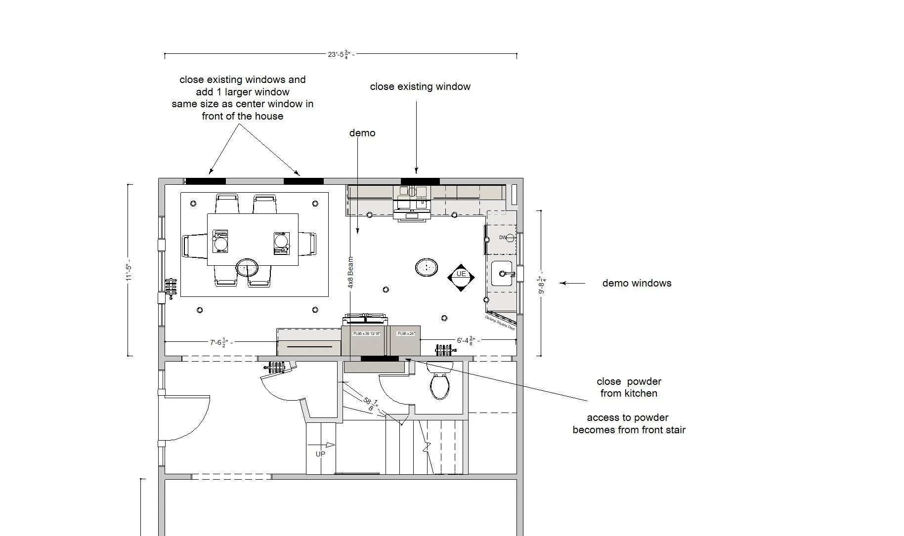
Floor plan, Elevation and 2 3D renders of a kitchen and dining room renovation in Arlington
4. Understand Permitting Before You Start the Clock
Permits are key. They're part of the project timeline and need to be planned for from day one.
Your designer, architect, and contractor should guide you through exactly what's required. In the Boston area, requirements can vary significantly by town. We can help you figure that out. When there is an architect on the project, they can help navigate this as well.
5. Decide Where You're Living During Construction
Will you stay in your home during the renovation or move out? This is a decision that affects everything — timeline, budget, contractor logistics, and your daily quality of life. It can affect your marriage and your family life.
For a single bathroom or a contained space, staying in the house can work fine with proper construction containment, especially if other areas are kept clear. For a major kitchen renovation or a whole-house project, not so much. Food prep, living around construction noise six days a week, and navigating a house without a functioning space adds stress that compounds quickly. Some families rent temporarily. Some stay with family or in a second home or a combo. Some find that staying works better than they expected — but that is rare.
There's no universal right answer. What matters is making a decision that is clearly thought through and early enough in the project for your contractor to plan work hours and site access around your living situation.
6. Plan for What You Can't Plan For
Even the most meticulously prepared renovation will encounter something unexpected. Structural surprises behind walls that weren't visible during initial walk-throughs or selective demo. A tile that's discontinued between selection and order. A lead time that shifts. A subcontractor who's unavailable when the project reaches their phase.
Budget and timeline buffers aren't a sign of poor planning — they're evidence of good planning. If you plan for it and accept that it will happen, it’s easier to roll with it when it happens.
This concept of on time and on budget? The only people who achieve this pad significantly. Because on time and on budget is not possible; it’s marketing. The fairest way to work in my opinion is time and materials as it’s based on reality, not 30% above their calculation of what the project is likely to be. That’s what many firms do. They roll it in. I prefer to be transparent.
So what makes sense? 15–20% for the budget and a buffer for the timeline.
Expect the unexpected and know I am at your side to walk you through it and solve for it.
The Bottom Line
Renovations are hard. Even a well-run project with a great team and a realistic budget is disruptive, demanding, and occasionally maddening. The people who come through it well — and end up with homes they love — are the ones who went in prepared, chose their team carefully, and kept their eyes on the prize.
That's what I've spent 24 years helping clients do. Not just the design — the whole arc of the project, from the first conversation about their dreams and what’s possible to the day the last installer leaves and you get to live in your beautiful home for many years to come.
Ready to start planning? Let's talk about your home and your vision.
Whether you're just beginning to think about what's possible or you're ready to explore options, I'd love to hear about your project and how I can help. Contact me at abbeyk.com/contact.
This is Part 2 of the AbbeyK Renovation Guide. Read Part 1: 6 Tips for a High-End Home Renovation (With Less Stress) →

